BOH

Cómo hacer un Back of House eficiente

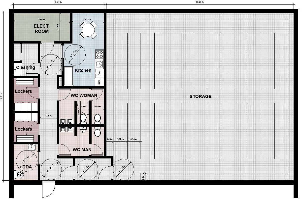
BOH 2.JPG

El BOH o Back of House (siglas en inglés) es el área de un local comercial donde se encuentran los servicios, almacén y cuartos técnicos. Es decir, es el área que surte al FOH (Front of House) o lo que se conoce como el área de venta.

El BOH es muchas veces el cerebro de un local, es donde se operan todos los servicios que surten al consumidor y también donde se prepara el staff o personal.

En este artículo explicaremos las áreas que debe tener un BOH de un local de artículos moda y complementos.

ÁREAS DE VESTUARIO

Es el primer y último recinto al cual entran los empleados, allí ellos deben cambiarse el atuendo de diario por el uniforme de la marca. Debe tener taquillas o lockers personales que permitan que cada empleado pueda colocar su ropa en el horario en el que trabaja. Adicionalmente, es recomendable que tenga un banquillo para la comodidad a la hora de cambiarse. También debe estar correctamente iluminado y que no se nos olvide, hay que colocar puntos de carga para los móviles!

ASEOS

Los aseos deben tener un área donde se encuentran los lavamanos, el espejo, el seca manos eléctrico o de papel, y el dispensador de jabón. Contiguo a ese espacio, deben encontrarse las cabinas de urinario las cuales deben tener 800mm de ancho por 1500mm de largo si la puerta abre hacia adentro, y 1300m de largo si la puerta abre hacia afuera, las puertas de las cabinas deben ser de ancho mínimo libre de 750mm.

El aseo accesible debe cumplir con la normativa de cada ciudad o país, debe tener una o dos áreas de desembarque lateral del wc, se debe poder inscribir un círculo de 1500mm de diámetro antes y después de la puerta de acceso y no debe interferir con el radio de apertura de la puerta ni con el lavamanos o el inodoro. Si la puerta es batiente debe abrir en el sentido de la evacuación.

COMEDOR / DESCANSO

Es el área destinada las actividades de comida y ocio del personal. Debe tener una nevera, un microondas, un fregadero, una fuente de agua potable, correcta iluminación y ventilación y una mesa y sillas para comer, también puede colocarse un sofá. El Staff room debe ser accesible para personas con discapacidad, por lo cual debe poder inscribirse un cÍrculo de 1500mm de diámetro antes y después de la puerta de acceso y no debe interferir con el radio de apertura de la puerta. Si la puerta es batiente debe abrir en el sentido de la evacuación.

CUARTO DE LIMPIEZA

Este debe estar cerca del Staff Room y cerca de los aseos, debe haber espacio suficiente para una pica y un mueble vertical para guardar utensilios y productos químicos. Generalmente tiene 3m2 de área y se puede incluir un área para almacenaje de basuras. El cuarto de limpieza y de basuras debe cumplir con la normativa de cada ciudad o país, pero generalmente debe ser alicatado con desagüe sinfónico, toma de agua, y tomacorrientes, el suelo debe ser antideslizante y con canto redondeado sanitario.

CUARTO ELÉCTRICO

Debe ser un cuarto paredes, techo, suelos y puerta resistentes al fuego. La apertura de la puerta debe ser siempre en el sentido de la evacuación. Sus dimensiones dependen de las maquinas que se colocarán pero generalmente puede medir 2000mm x 4000mm. Se debe garantizar la ventilación y la temperatura exigida por los expertos.

VESTÍBULO Y PASILLOS

Conviene tener un vestíbulo del cual se acceda a los cuartos y al almacén, es decir, no se recomienda acceder a los cuartos a través del almacén. El pasillo que da acceso a los distintos cuartos del BOH suele ser mínimo de 1200mm de ancho, excepto que la normativa indique lo contrario.